ON Y VA – Arealentwicklung Luzernerstrasse – 1. Rang Littau, Luzern / 2025
“On y va” – 1. Platz / Eingeladener Wettbewerb
Arealentwicklung Luzernerstrasse / Littau, Luzern
In Zusammenarbeit mit EDER Landschaftsarchitektur
Das Projekt reagiert auf den strategischen Fokus der Stadt Luzern auf die Verdichtung des städtischen Raums – mehr Wohnraum innerhalb bestehender urbaner Gebiete zu schaffen, um dem Bevölkerungswachstum gerecht zu werden und der Wohnungsknappheit entgegenzuwirken. Die Stadt strebt ausdrücklich eine Erhöhung des Anteils an gemeinnützigen und erschwinglichen Wohnungen in Gemeinden wie Littau an, die über einige der grössten unbebauten oder ungenutzten Flächen der Stadt verfügen und somit ideale Voraussetzungen für einen grossflächigen Neubau bieten.
Die Auftraggeberin, die Baugenossenschaft Matt, die zahlreiche genossenschaftliche Wohnprojekte in der Region betreibt, wünschte sich eine Mischung aus Wohnungen unterschiedlicher Grösse, wobei mindestens ein Viertel als kompakte, seniorengerechte Einheiten mit attraktiven Gemeinschaftseinrichtungen gestaltet werden sollte. Ziel ist es, ältere Bewohnerinnen, die derzeit erschwingliche, aber ungenutzte Familienwohnungen bewohnen, zu ermutigen, sich räumlich zu verkleinern, um so grössere Einheiten für Familien freizumachen – eine Gruppe, die im Kanton Luzern einen anhaltenden Wohnraumbedarf hat.
Verspiegelte und versetzte L-förmige Volumen stehen in Beziehung zu den grossmassstäblichen Bebauungen im Süden, während weitläufige Freiflächen und ein einstöckiger Kindergartenpavillon einen sanften Übergang zum weniger dicht bebauten Wohngebiet im Norden schaffen. Die Anlage bildet einen wohlproportionierten, ruhigen Innenhof, der vor dem starken Verkehr geschützt ist, und schafft einen dicht begrünten Gemeinschaftsgarten, der sowohl den Bewohnern als auch der weiteren Nachbarschaft dient.
Das Erdgeschoss wird durch gemeinsame Wohnangebote, Ateliers sowie flexible gastronomische und gewerbliche Flächen aktiviert und schafft ein breites Spektrum an Atmosphären – von lebhaften öffentlichen Plätzen über halböffentliche, ruhigere, auf die Bewohner ausgerichtete Zonen bis hin zu zurückversetzten Bürofronten.
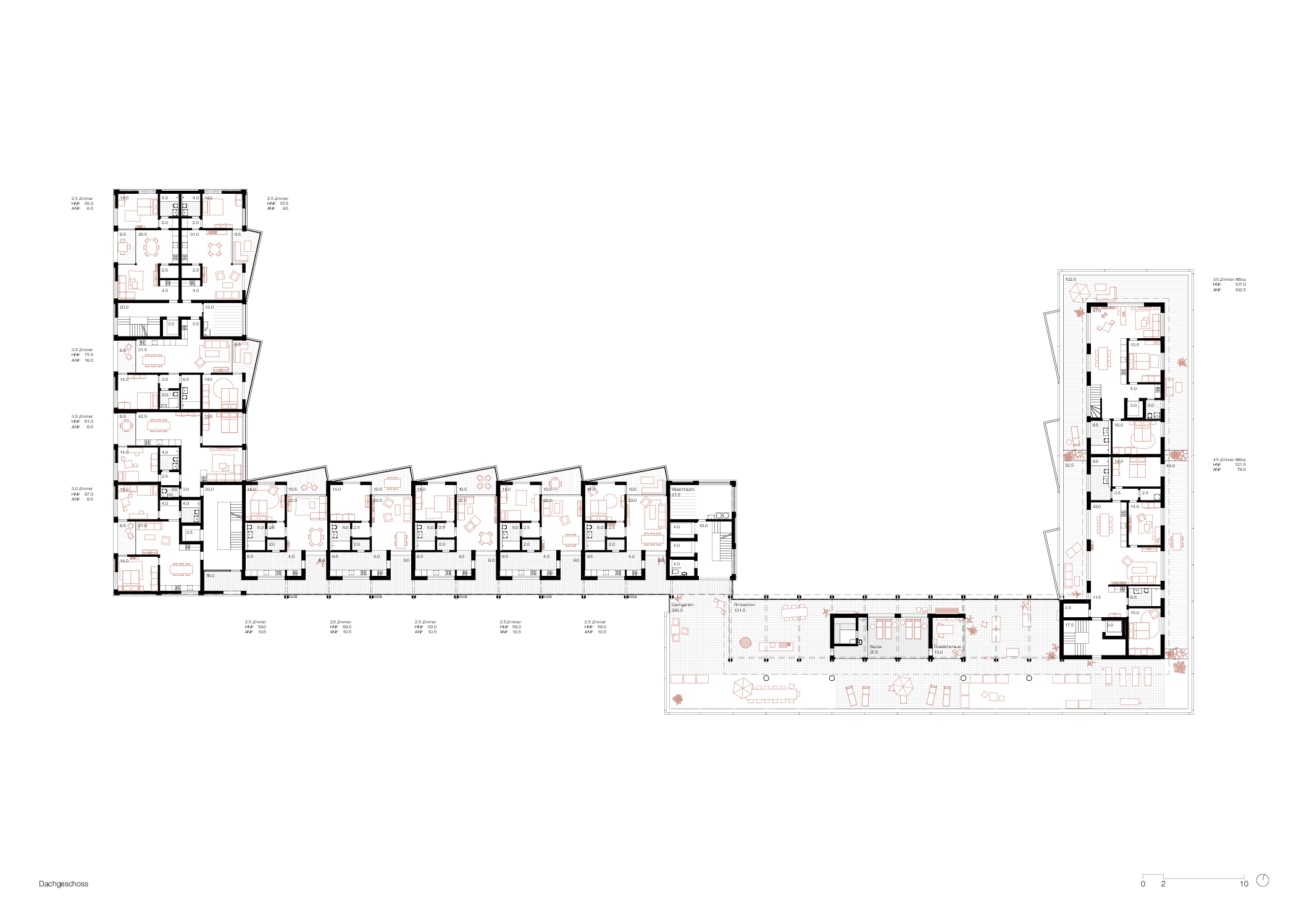
Die Anlage umfasst 97 Wohnungen mit einer Vielzahl von Wohnungsgrössen und -typen, die den sozialen und räumlichen Bedürfnissen einer breiten Mieterschaft gerecht werden. Gemeinschaftseinrichtungen – darunter Waschküche, Musikzimmer, Sauna und Werkstatt – sind strategisch an wichtigen Verkehrsknotenpunkten entlang des gemeinsamen Laubengang positioniert, um die Zugänglichkeit zu verbessern und informelle soziale Interaktionen zu fördern. Eine einfache, präzise Geometrie des Grundrisses ermöglicht Flexibilität bei der Planung und eine leichtere Anpassung an zukünftige Umbauten. Der Gebäudekomplex besteht aus vier miteinander verbundenen Gebäudeteilen. Subtile Variationen in Form und Materialien lockern die Gesamtstruktur auf und stärken gleichzeitig die Identifikation der Bewohner mit ihrem jeweiligen Gebäudeteil.